Cameră mortuară modulară MMC 6.2 + formată din panouri modulare, cu izolație din spumă poliuretanică rigidă ignifugă, cu două uși articulate și șase platforme pentru corpuri din oțel inoxidabil 18/10 AISI 304.
• Construcție: structura este formată din panouri modulare, tip „sandwich”. Panourile de perete, tavan și pardoseală sunt realizate în tablă de oțel acoperită cu vopsea albă epoxidică atât în interior cât și în exterior sau din oțel inoxidabil 18/10 AISI 304 atât în interior, cât și în exterior. Podeaua include instalații de scurgere pentru a facilita scurgerea fluidelor sau a apei după operațiile de curățare.
• Izolație: „inima” panourilor este realizată din spumă poliuretanică rigidă ignifugă, cu putere izolantă mare, injectată la presiune ridicată în ordine pentru a atinge densitatea medie de 40 Kg / m³. Grosimea izolației este de 80 mm. Injectate cu spumă în izolație, toate panourile sunt prevăzute cu cârlige și știfturi de blocare pentru a fixa panourile împreună și pentru a asigura stabilitatea structurii. De asemenea, au o formă de limbă / canelură și material izolator, pentru a limita la minimum pierderea de aer rece când este asamblat. Spuma poliuretanică nu conține CFC- și HCFC-.
• Uși: 2 uși articulate, montate de-a lungul părții laterale a 2120 mm. Ușile sunt complet izolate, realizate cu același material (tablă de oțel acoperită epoxidic de culoare albă sau oțel inoxidabil 18/10 AISI 304) cu izolarea panourilor. Ambele uși sunt prevăzute cu un mâner tip pârghie, închidere pe un știft de blocare, garnitură de cauciuc pentru a asigura o etanșare ermetică și profil de închidere încălzit pentru a evita condensarea sau formarea înghețului. Deschiderea fiecărei uși este de 800 x 1850 mm (l x H). Fiecare ușă conține 3 platforme pentru corpuri.
• Structură internă: cu un sistem de cadru tubular prevăzut cu glisante în formă de „C” pentru a preveni înclinarea platformelor pentru corpuri atunci când sunt extrase parțial. Întregul cadru și lamele sunt realizate din oțel inoxidabil 18/10 AISI 304.
• Platformele pentru corp: 6 platforme, realizate din oțel inoxidabil 18/10 AISI 304. Acestea se înclină spre centrul lor pentru a evita pierderile de lichide. Includ role de plastic pe laterale, pentru a facilita operațiunile de extracție / inserare și mânerele duble pentru o prindere ușoară și sigură.
• Iluminare interioară: 2 tuburi LED, montate în pereții laterali, cu activare printr-un comutator special amplasat pe panoul de control. Acestea oferă economie de energie și previn încălzirea internă produsă de tuburile tradiționale de neon.
• Panou de control: situat în partea din față a camerei, include întrerupătorul principal, necesar pentru a regla temperatura interioară (comutatorul SET, pentru a vedea temperatura programată; SĂGEATĂ ÎN SUS, pentru a crește temperatura programată; SĂGEATĂ JOS, pentru a reduce temperatura programată) și afișajul care arată temperatura reală în cameră. De asemenea, în panoul de control există încă 4 LED-uri, primul semnalează că compresorul funcționează, al doilea semnalează că ventilatorul evaporatorului funcționează, al treilea semnalează că dezghețarea este în curs și al patrulea, semnalează că există o defecțiune în camera frigorific.
• Motor: tip monobloc, montat deasupra (în tavanul camerei) cu compresor ermetic industrial, condensator răcit cu aer și evaporator ventilat. Compresorul montat are o putere de 1 CP.
• Structura motorului: din tablă de aluminiu acoperită cu vopsea albă și gofrată, cu panouri detașabile pentru a facilita întreținerea.
• Agent frigorific: R404a fără CFC
• Refrigerare: aer forțat, prin ventilatoare, oferind uniformitate și stabilitate maximă a temperaturii în interiorul camerei.
• Decongelare: complet automată, controlată de termostat, tip gaz cald. Apa de condens este canalizată automat într-o tavă încălzită, amplasată în compartimentul motorului, pentru evaporarea automată a apei de condens.
• Interval de temperatură: reglabil infinit între 0 ° C / + 10 ° C
• Tensiune (V / ph / Hz): 220-230 / 1/50
• Nivel de zgomot (dB (A)): ≤ 54
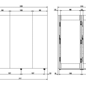
• Dimensiuni externe (W x D x H mm): 2120 x 2420 x 2800 (unitate de răcire inclusă)
• Greutate netă (Kg): 1000
Accesorii opționale:
• Înregistrator grafic de temperatură
• Card holder
• Tensiune diferită
• Cutie de depozitare din lemn
Variante:
• Acoperită cu vopsea albă epoxidică – 161 407 lei
• Din oțel inoxidabil 18/10 AISI 304 – 193 087 lei




Reviews
There are no reviews yet.